399 Mixed Use Build to Rent

External render of 399 Montague Road, a multi-storey mixed-use development with ground-floor retail and modern apartments

Stones Corner Village

High-density residential development render for Stones Corner Village featuring arched ground-floor architecture and lush landscaping

North Brisbane Housing

Street-level view of a modern townhouse development in North Brisbane with clean white finishes and timber accents.

Bridgewater Educational Facility

Contemporary architectural design for the Bridgewater Educational Facility, showcasing timber screening and integrated greenery.

Spring Hill Student Accommodation

Sleek, high-rise student accommodation tower in Spring Hill featuring a distinctive vertical facade and modern grey tones.

NSW Community Housing

Soft-tone architectural sketch of a community housing precinct in NSW with central courtyards and pedestrian-focused design
Soft-tone architectural sketch of a community housing precinct in NSW with central courtyards and pedestrian-focused design

NT Community Housing

Render of a 5-storey community housing project in the Northern Territory with shaded balconies and tropical design elements.

Mixed Use Seaforth NSW

Corner view render of a boutique mixed-use project in Seaforth, NSW, featuring commercial tenancies and luxury residential.

Hillside Residences Toowoomba

Elevated render of Hillside Residences in Toowoomba, showcasing dual residential blocks nestled into a sloping site.
Elevated render of Hillside Residences in Toowoomba, showcasing dual residential blocks nestled into a sloping site.

SA Community Housing

Isometric architectural site plan sketch for a South Australian community housing development with extensive private gardens.

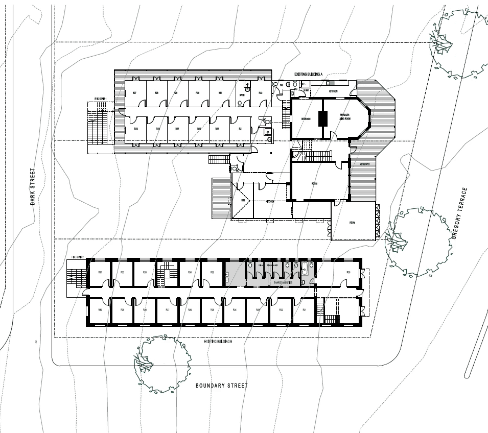
Gregory Terrace Heritage Accommodation

Detailed architectural floor plan and site layout for a heritage accommodation project on Gregory Terrace.
Detailed architectural floor plan and site layout for a heritage accommodation project on Gregory Terrace.

QLD Community Housing

Aerial perspective sketch of a QLD community housing complex featuring two parallel apartment blocks and perimeter landscaping.
Aerial perspective sketch of a QLD community housing complex featuring two parallel apartment blocks and perimeter landscaping.

MK Architecture acknowledges the Traditional Custodians of country throughout Australia and their connections to land, sea and community.

We pay our respects to their elders past and present and extend that respect to all Aboriginal and Torres Strait Islander peoples today.

MK Architecture

MK Architecture acknowledges the Traditional Custodians of country throughout Australia and
their connections to land, sea and community. We pay our respects to their elders past and
present and extend that respect to all Aboriginal and Torres Strait Islander peoples today.



MK Architecture acknowledges the Traditional
Custodians of country throughout Australia and
their connections to land, sea and community.
We pay our respects to their elders past and
present and extend that respect to all Aboriginal
and Torres Strait Islander peoples today.